產品特點
JYWQ、JPWQ系列自動攪動排污泵是在普通型排污泵的基礎上采用自動攪拌裝置,該裝置隨電機旋轉,產生極強的攪拌力,將污水池內的沉積物攪拌成懸浮物,吸入泵內排出,提高了泵的防堵、排污能力,一次性完成了排水、排污、除淤,節約了運行成本,是具有明顯的先進性和實用性的環保產品。
型號說明

注:JYWQ為普通型自動攪勻排污泵
JPWQ為帶不銹鋼外套內循環冷卻系統的自動攪勻排污泵
產品用途
工廠、商業嚴重污染廢水的排放。
城市污水處理廠、醫院、賓館的排水系統。
住宅區的污水排水站。
人防系統排水站、自來水廠的給水裝置。
市政工程、建筑工地。
勘探、礦山、發電廠配套附機。
農村沼氣池、農田灌溉、河塘清淤。
使用條件
介質溫度不超過60℃,介質重度為1~1.3kg/dm3,PH值在4~10范圍內。
1Cr18Ni9Ti不銹鋼材質可適用各種腐蝕性介質。
注:用戶如有特殊的介質、溫度等要求,請在訂貨時注明輸送介質詳細情況,以便本公司提供更為可靠之產品。
結構特點說明
采用獨特的雙流道無堵塞葉輪結構,提高污水污物的過流能力和排污能力。
自動攪拌裝置,產生極強的攪拌力,將池內的沉淀物攪拌成懸浮物后吸入葉輪排出,達到清淤的作用。
隔板將底座一分為二,攪拌與進水互不影響。
機械密封為雙端面機械密封,長期處于油室中,保證水泵安全可靠地運行。
副葉輪結構的流體動力密封,既有輔助密封作用,從而保護機械密封,又平衡軸向力,延長軸承的使用壽命。
泵接線腔內設有漏水檢測探頭,出現漏水時,探頭發出信號,控制系統對泵實施保護。本公司可配全自動安全保護控制柜。
電機定子采用B級和F級絕緣,內設熱保護器,當電機過載發熱,保護器及時作出動作,對泵和電機實施絕對的保護。
油室內裝有油水探頭,當機械密封損壞后,水進入油室,探頭發出信號,由控制系統對水泵實施保護。
JPWQ帶內循環冷卻系統,能保證水泵在水池更低水位正常工作。

性能參數及型譜圖
序號 | 型號 | 排出口徑 (mm) | 額定流量 (m3/h) | 額定揚程 (m) | 攪拌直徑 (mm) | 轉速 (r/min) | 功率 (kw) | 效率 (%) | 自動 耦合器 |
1 | 50-12-15-1200-1.5 | 50 | 12 | 15 | 1200 | 2900 | 1.5 | 48 | GAK-50 |
2 | 50-20-7-1200-1.1 | 50 | 20 | 7 | 1200 | 2900 | 1.1 | 62 | GAK-50 |
3 | 50-10-10-1200-1.1 | 50 | 10 | 10 | 1200 | 2900 | 1.1 | 56 | GAK-50 |
4 | 50-15-15-1200-2.2 | 50 | 15 | 15 | 1200 | 2900 | 2.2 | 51 | GAK-50 |
5 | 50-25-10-1200-2.2 | 50 | 25 | 10 | 1200 | 2900 | 2.2 | 65 | GAK-50 |
6 | 50-15-20-1200-2.2 | 50 | 15 | 20 | 1200 | 2900 | 2.2 | 56 | GAK-50 |
7 | 50-20-15-1200-2.2 | 50 | 20 | 15 | 1200 | 2900 | 2.2 | 56 | GAK-50 |
8 | 50-42-9-1200-3 | 50 | 42 | 9 | 1200 | 2900 | 3 | 56 | GAK-50 |
9 | 50-17-25-1200-4 | 50 | 17 | 25 | 1200 | 2900 | 4 | 56 | GAK-50 |
10 | 50-25-22-1200-4 | 50 | 25 | 22 | 1200 | 2900 | 4 | 62 | GAK-50 |
11 | 50-40-15-1400-4 | 50 | 40 | 15 | 1400 | 2900 | 4 | 70 | GAK-50 |
12 | 50-25-32-1600-5.5 | 50 | 25 | 32 | 1600 | 2900 | 5.5 | 52 | GAK-50 |
13 | 50-40-30-1600-7.5 | 50 | 40 | 30 | 1600 | 2900 | 7.5 | 68 | GAK-50 |
14 | 65-25-15-1400-3 | 65 | 25 | 15 | 1400 | 2900 | 3 | 65 | GAK-65 |
15 | 65-37-13-1400-3 | 65 | 37 | 13 | 1400 | 2900 | 3 | 62 | GAK-65 |
16 | 65-25-28-1400-4 | 65 | 25 | 28 | 1400 | 2900 | 4 | 60 | GAK-65 |
17 | 80-40-7-1600-2.2 | 80 | 40 | 7 | 1600 | 2900 | 2.2 | 54 | GAK-80 |
18 | 80-29-8-1600-2.2 | 80 | 29 | 8 | 1600 | 2900 | 2.2 | 54 | GAK-80 |
19 | 80-43-13-1600-4 | 80 | 43 | 13 | 1600 | 2900 | 4 | 63 | GAK-80 |
20 | 80-50-10-1600-3 | 80 | 50 | 10 | 1600 | 1450 | 3 | 76 | GAK-80 |
21 | 80-40-15-1600-4 | 80 | 40 | 15 | 1600 | 2900 | 4 | 70 | GAK-80 |
22 | 80-60-13-1600-4 | 80 | 60 | 13 | 1600 | 2900 | 4 | 70 | GAK-80 |
23 | 80-35-25-1600-5.5 | 80 | 35 | 25 | 1600 | 2900 | 5.5 | 64 | GAK-80 |
24 | 80-50-30-1600-7.5 | 80 | 50 | 30 | 1600 | 2900 | 7.5 | 70 | GAK-80 |
25 | 80-50-30-1600-7.5 | 80 | 50 | 30 | 1600 | 2900 | 7.5 | 70 | GAK-80 |
26 | 100-80-9-2000-4 | 100 | 80 | 9 | 2000 | 1450 | 4 | 62 | GAK-100 |
27 | 100-110-10-2000-5.5 | 100 | 110 | 10 | 2000 | 1450 | 5.5 | 71 | GAK-100 |
28 | 100-70-15-2000-5.5 | 100 | 70 | 15 | 2000 | 1450 | 5.5 | 71 | GAK-100 |
29 | 100-100-15-2000-7.5 | 100 | 100 | 15 | 2000 | 1450 | 7.5 | 73 | GAK-100 |
30 | 100-80-20-2000-7.5 | 100 | 80 | 20 | 2000 | 2900 | 7.5 | 71 | GAK-100 |
31 | 100-50-35-2000-11 | 100 | 50 | 35 | 2000 | 2900 | 11 | 68 | GAK-100 |
32 | 100-70-22-2000-7.5 | 100 | 70 | 22 | 2000 | 2900 | 7.5 | 70 | GAK-100 |
33 | 100-100-22-2000-15 | 100 | 100 | 22 | 2000 | 1450 | 15 | 61 | GAK-100 |
34 | 100-80-30-2000-15 | 100 | 80 | 30 | 2000 | 1450 | 15 | 67 | GAK-100 |
35 | 150-150-10-2000-7.5 | 150 | 150 | 10 | 2000 | 1450 | 7.5 | 75 | GAK-150 |
36 | 150-210-7-2500-7.5 | 150 | 210 | 7 | 2500 | 1450 | 7.5 | 78 | GAK-150 |
37 | 150-250-6-2500-7.5 | 150 | 250 | 6 | 2500 | 1450 | 7.5 | 79 | GAK-150 |
38 | 150-150-15-2500-11 | 150 | 150 | 15 | 2500 | 1450 | 11 | 79 | GAK-150 |
39 | 150-200-10-2500-15 | 150 | 200 | 10 | 2500 | 1450 | 15 | 73 | GAK-150 |
40 | 150-65-40-3200-18.5 | 150 | 65 | 40 | 3200 | 1450 | 18.5 | 58 | GAK-150 |
41 | 150-180-22-2600-18.5 | 15 | 180 | 22 | 2600 | 1450 | 18.5 | 75 | GAK-150 |
42 | 150-150-26-2600-18.5 | 150 | 150 | 26 | 2600 | 1450 | 18.5 | 72 | GAK-150 |
43 | 150-110-30-2600-18.5 | 150 | 110 | 30 | 2600 | 1450 | 18.5 | 72 | GAK-150 |
44 | 150-130-15-2600-22 | 150 | 130 | 15 | 2600 | 1450 | 22 | 76 | GAK-150 |
45 | 150-130-30-2600-22 | 150 | 130 | 30 | 2600 | 1450 | 22 | 70 | GAK-150 |
46 | 150-100-40-3000-30 | 150 | 100 | 40 | 3000 | 1450 | 30 | 64 | GAK-150 |
47 | 200-300-7-3000-11 | 200 | 300 | 7 | 3000 | 1450 | 11 | 75 | GAK-200 |
48 | 200-250-11-3000-15 | 200 | 250 | 11 | 3000 | 1450 | 15 | 72 | GAK-200 |
49 | 200-300-10-3000-15 | 200 | 300 | 10 | 3000 | 1450 | 15 | 75 | GAK-200 |
50 | 200-250-15-3000-18.5 | 200 | 250 | 15 | 3000 | 1450 | 18.5 | 72 | GAK-200 |
51 | 200-400-10-3000-22 | 200 | 400 | 10 | 3000 | 1450 | 22 | 75 | GAK-200 |
52 | 200-200-20-3000-22 | 200 | 200 | 20 | 3000 | 1450 | 22 | 73 | GAK-200 |
53 | 200-250-22-3000-30 | 200 | 250 | 22 | 3000 | 1450 | 30 | 73 | GAK-200 |
54 | 250-600-7-3000-22 | 250 | 600 | 7 | 3000 | 1450 | 22 | 78 | GAK-250 |
55 | 250-600-9-3000-30 | 250 | 600 | 9 | 3000 | 1450 | 30 | 78 | GAK-250 |

移動式安裝尺寸表及示意圖

序號 | 型 號 | A | B | C | D1 | D | H |
1 | 50-12-15-1200-1.5 | 135 | 400 | 245 | 225 | 255 | 670 |
2 | 50-20-7-1200-1.1 | 132 | 343 | 225 | 150 | 180 | 610 |
3 | 50-10-10-1200-1.1 | 132 | 343 | 225 | 150 | 180 | 610 |
4 | 50-15-15-1200-2.2 | 135 | 400 | 245 | 225 | 255 | 670 |
5 | 50-25-10-1200-2.2 | 135 | 400 | 245 | 225 | 255 | 670 |
6 | 50-15-20-1200-2.2 | 135 | 400 | 245 | 225 | 255 | 670 |
7 | 50-20-15-1200-2.2 | 135 | 400 | 245 | 225 | 255 | 670 |
8 | 50-42-9-1200-3 | 143 | 420 | 265 | 225 | 255 | 750 |
9 | 50-17-25-1200-4 | 130 | 433 | 265 | 240 | 285 | 750 |
10 | 50-25-22-1200-4 | 135 | 400 | 245 | 225 | 255 | 735 |
11 | 50-40-15-1400-4 | 143 | 420 | 265 | 225 | 255 | 750 |
12 | 50-25-32-1600-5.5 | 180 | 480 | 295 | 270 | 320 | 820 |
13 | 50-40-30-1600-7.5 | 180 | 480 | 295 | 270 | 320 | 820 |
14 | 65-25-15-1400-3 | 143 | 435 | 270 | 225 | 255 | 750 |
15 | 65-37-13-1400-3 | 143 | 435 | 270 | 225 | 255 | 750 |
16 | 65-25-28-1400-4 | 180 | 515 | 317 | 270 | 320 | 800 |
17 | 80-40-7-1600-2.2 | 143 | 465 | 295 | 225 | 255 | 685 |
18 | 80-29-8-1600-2.2 | 143 | 465 | 295 | 225 | 255 | 685 |
19 | 80-43-13-1600-4 | 143 | 465 | 295 | 225 | 255 | 750 |
20 | 80-50-10-1600-3 | 180 | 570 | 325 | 280 | 320 | 790 |
21 | 80-40-15-1600-4 | 143 | 465 | 395 | 225 | 255 | 750 |
22 | 80-60-13-1600-4 | 143 | 465 | 395 | 225 | 255 | 750 |
23 | 80-35-25-1600-5.5 | 180 | 550 | 305 | 270 | 320 | 820 |
24 | 80-50-30-1600-7.5 | 180 | 550 | 305 | 270 | 320 | 820 |
25 | 80-50-30-1600-7.5 | 180 | 550 | 305 | 270 | 320 | 820 |
26 | 100-80-9-2000-4 | 180 | 600 | 386 | 280 | 320 | 790 |
27 | 100-110-10-2000-5.5 | 200 | 700 | 440 | 370 | 410 | 900 |
28 | 100-70-15-2000-5.5 | 200 | 690 | 430 | 370 | 410 | 900 |
29 | 100-100-15-2000-7.5 | 200 | 700 | 440 | 370 | 410 | 900 |
30 | 100-80-20-2000-7.5 | 180 | 585 | 370 | 270 | 320 | 900 |
31 | 100-50-35-2000-11 | 180 | 585 | 370 | 270 | 320 | 940 |
32 | 100-70-22-2000-7.5 | 180 | 585 | 370 | 270 | 320 | 900 |
33 | 100-100-22-2000-15 | 230 | 815 | 515 | 455 | 495 | 970 |
34 | 100-80-30-2000-15 | 230 | 815 | 515 | 455 | 495 | 970 |
35 | 150-150-10-2000-7.5 | 213 | 775 | 495 | 360 | 405 | 920 |
36 | 150-210-7-2500-7.5 | 242 | 830 | 540 | 365 | 410 | 950 |
37 | 150-250-6-2500-7.5 | 242 | 830 | 540 | 365 | 410 | 950 |
38 | 150-150-15-2500-11 | 220 | 770 | 495 | 345 | 395 | 990 |
39 | 150-200-10-2500-15 | 220 | 770 | 495 | 345 | 395 | 990 |
40 | 150-65-40-3200-18.5 | 250 | 930 | 595 | 440 | 495 | 1206 |
41 | 150-180-22-2600-18.5 | 270 | 930 | 595 | 440 | 495 | 1226 |
42 | 150-150-26-2600-18.5 | 270 | 930 | 595 | 440 | 495 | 1226 |
43 | 150-110-30-2600-18.5 | 270 | 930 | 595 | 440 | 495 | 1226 |
44 | 150-130-15-2600-22 | 300 | 900 | 575 | 440 | 495 | 1265 |
45 | 150-130-30-2600-22 | 270 | 930 | 595 | 440 | 495 | 1226 |
46 | 150-100-40-3000-30 | 270 | 930 | 595 | 440 | 495 | 1200 |
47 | 200-300-7-3000-11 | 270 | 945 | 605 | 400 | 445 | 1130 |
48 | 200-250-11-3000-15 | 270 | 945 | 605 | 400 | 445 | 1130 |
49 | 200-300-10-3000-15 | 270 | 945 | 605 | 400 | 445 | 1130 |
50 | 200-250-15-3000-18.5 | 270 | 945 | 605 | 400 | 445 | 1226 |
51 | 200-400-10-3000-22 | 270 | 945 | 605 | 400 | 445 | 1226 |
52 | 200-200-20-3000-22 | 297 | 980 | 630 | 440 | 495 | 1236 |
53 | 200-250-22-3000-30 | 297 | 980 | 630 | 440 | 495 | 1236 |
固定式自動耦合安裝尺寸表及示意圖
序號 | 型號 | фA | фB | фC | N1-фd | H | K | G | H1 | H2 | H3 | h | g | p | f | y | N2-фk | J | R |
1 | 50-12-15-1200-1.5 | 50 | 110 | 140 | 4-ф14 | 670 | 265 | 165 | 280 | 450 | 50 | 20 | 260 | 230 | 310 | 210 | 4-ф16 | 185 | 115 |
2 | 50-20-7-1200-1.1 | 50 | 110 | 140 | 4-ф14 | 610 | 245 | 165 | 280 | 400 | 50 | 20 | 260 | 230 | 310 | 210 | 4-ф16 | 185 | 85 |
3 | 50-10-10-1200-1.1 | 50 | 110 | 140 | 4-ф14 | 610 | 245 | 165 | 280 | 400 | 50 | 20 | 260 | 230 | 310 | 210 | 4-ф16 | 185 | 85 |
4 | 50-15-15-1200-2.2 | 50 | 110 | 140 | 4-ф14 | 670 | 265 | 165 | 280 | 450 | 50 | 20 | 260 | 230 | 310 | 210 | 4-ф16 | 185 | 115 |
5 | 50-25-10-1200-2.2 | 50 | 110 | 140 | 4-ф14 | 670 | 265 | 165 | 280 | 450 | 50 | 20 | 260 | 230 | 310 | 210 | 4-ф16 | 185 | 115 |
6 | 50-15-20-1200-2.2 | 50 | 110 | 140 | 4-ф14 | 670 | 265 | 165 | 280 | 450 | 50 | 20 | 260 | 230 | 310 | 210 | 4-ф16 | 185 | 115 |
7 | 50-20-15-1200-2.2 | 50 | 110 | 140 | 4-ф14 | 670 | 265 | 165 | 280 | 450 | 50 | 20 | 260 | 230 | 310 | 210 | 4-ф16 | 185 | 115 |
8 | 50-42-9-1200-3 | 50 | 110 | 140 | 4-ф14 | 750 | 285 | 165 | 280 | 520 | 50 | 20 | 260 | 230 | 310 | 210 | 4-ф16 | 185 | 115 |
9 | 50-17-25-1200-4 | 50 | 110 | 140 | 4-ф14 | 750 | 285 | 165 | 280 | 520 | 50 | 20 | 260 | 230 | 310 | 210 | 4-ф16 | 185 | 115 |
10 | 50-25-22-1200-4 | 50 | 110 | 140 | 4-ф14 | 735 | 265 | 165 | 280 | 500 | 50 | 20 | 260 | 230 | 310 | 210 | 4-ф16 | 185 | 115 |
11 | 50-40-15-1400-4 | 50 | 110 | 140 | 4-ф14 | 750 | 285 | 165 | 280 | 510 | 50 | 20 | 260 | 230 | 310 | 210 | 4-ф16 | 185 | 115 |
12 | 50-25-32-1600-5.5 | 50 | 110 | 140 | 4-ф14 | 820 | 315 | 165 | 280 | 570 | 50 | 20 | 260 | 230 | 310 | 210 | 4-ф16 | 185 | 115 |
13 | 50-40-30-1600-7.5 | 50 | 110 | 140 | 4-ф14 | 820 | 315 | 165 | 280 | 570 | 50 | 20 | 260 | 230 | 310 | 210 | 4-ф16 | 185 | 115 |
14 | 65-25-15-1400-3 | 65 | 130 | 160 | 4-ф14 | 750 | 290 | 145 | 330 | 500 | 65 | 25 | 275 | 255 | 310 | 225 | 4-ф18 | 190 | 115 |
15 | 65-37-13-1400-3 | 65 | 130 | 160 | 4-ф14 | 750 | 290 | 145 | 330 | 500 | 65 | 25 | 275 | 255 | 310 | 225 | 4-ф18 | 190 | 115 |
16 | 65-25-28-1400-4 | 65 | 130 | 160 | 4-ф14 | 800 | 340 | 145 | 330 | 550 | 65 | 25 | 275 | 255 | 310 | 225 | 4-ф18 | 190 | 115 |
17 | 80-40-7-1600-2.2 | 80 | 150 | 190 | 4-ф18 | 685 | 285 | 150 | 360 | 470 | 80 | 25 | 285 | 260 | 335 | 255 | 4-ф18 | 225 | 115 |
18 | 80-29-8-1600-2.2 | 80 | 150 | 190 | 4-ф18 | 685 | 285 | 150 | 360 | 470 | 80 | 25 | 285 | 260 | 335 | 255 | 4-ф18 | 225 | 115 |
19 | 80-43-13-1600-4 | 80 | 150 | 190 | 4-ф18 | 750 | 285 | 150 | 360 | 510 | 80 | 25 | 285 | 260 | 335 | 255 | 4-ф18 | 225 | 115 |
20 | 80-50-10-1600-3 | 80 | 150 | 190 | 4-ф18 | 790 | 360 | 150 | 360 | 540 | 80 | 25 | 285 | 260 | 335 | 255 | 4-ф18 | 225 | 115 |
21 | 80-40-15-1600-4 | 80 | 150 | 190 | 4-ф18 | 750 | 285 | 150 | 360 | 510 | 80 | 25 | 285 | 260 | 335 | 255 | 4-ф18 | 225 | 165 |
22 | 80-60-13-1600-4 | 80 | 150 | 190 | 4-ф18 | 750 | 285 | 150 | 360 | 510 | 80 | 25 | 285 | 260 | 335 | 255 | 4-ф18 | 225 | 115 |
23 | 80-35-25-1600-5.5 | 80 | 150 | 190 | 4-ф18 | 820 | 345 | 150 | 360 | 570 | 80 | 25 | 285 | 260 | 335 | 255 | 4-ф18 | 225 | 115 |
24 | 80-50-30-1600-7.5 | 80 | 150 | 190 | 4-ф18 | 820 | 345 | 150 | 360 | 570 | 80 | 25 | 285 | 260 | 335 | 255 | 4-ф18 | 225 | 135 |
25 | 80-50-30-1600-7.5 | 80 | 150 | 190 | 4-ф18 | 820 | 345 | 150 | 360 | 570 | 80 | 25 | 285 | 260 | 335 | 255 | 4-ф18 | 225 | 135 |
26 | 100-80-9-2000-4 | 80 | 150 | 190 | 4-ф18 | 790 | 390 | 200 | 420 | 550 | 100 | 25 | 340 | 310 | 400 | 305 | 4-ф20 | 250 | 135 |
27 | 100-110-10-2000-5.5 | 100 | 170 | 210 | 4-ф18 | 900 | 445 | 200 | 420 | 600 | 100 | 25 | 340 | 310 | 400 | 305 | 4-ф20 | 250 | 165 |
28 | 100-70-15-2000-5.5 | 100 | 170 | 210 | 4-ф18 | 900 | 435 | 200 | 420 | 600 | 100 | 25 | 340 | 310 | 400 | 305 | 4-ф20 | 250 | 195 |
29 | 100-100-15-2000-7.5 | 100 | 170 | 210 | 4-ф18 | 900 | 445 | 200 | 420 | 600 | 100 | 25 | 340 | 310 | 400 | 305 | 4-ф20 | 250 | 195 |
30 | 100-80-20-2000-7.5 | 100 | 170 | 210 | 4-ф18 | 900 | 345 | 200 | 420 | 570 | 100 | 25 | 340 | 310 | 400 | 305 | 4-ф20 | 250 | 240 |
31 | 100-50-35-2000-11 | 100 | 170 | 210 | 4-ф18 | 940 | 345 | 200 | 420 | 650 | 100 | 25 | 340 | 310 | 400 | 305 | 4-ф20 | 250 | 135 |
32 | 100-70-22-2000-7.5 | 100 | 170 | 210 | 4-ф18 | 900 | 345 | 200 | 420 | 570 | 100 | 25 | 340 | 310 | 400 | 305 | 4-ф20 | 250 | 135 |
33 | 100-100-22-2000-15 | 100 | 170 | 210 | 4-ф18 | 970 | 515 | 200 | 420 | 680 | 100 | 25 | 340 | 310 | 400 | 305 | 4-ф20 | 250 | 240 |
34 | 100-80-30-2000-15 | 100 | 170 | 210 | 4-ф18 | 970 | 515 | 200 | 420 | 680 | 100 | 25 | 340 | 310 | 400 | 305 | 4-ф20 | 250 | 240 |
35 | 150-150-10-2000-7.5 | 150 | 225 | 265 | 8-ф18 | 920 | 465 | 270 | 520 | 620 | 150 | 25 | 400 | 370 | 500 | 405 | 4-ф20 | 335 | 205 |
36 | 150-210-7-2500-7.5 | 150 | 225 | 265 | 8-ф18 | 950 | 515 | 270 | 520 | 650 | 150 | 25 | 400 | 370 | 500 | 405 | 4-ф20 | 335 | 230 |
37 | 150-250-6-2500-7.5 | 150 | 225 | 265 | 8-ф18 | 950 | 515 | 270 | 520 | 650 | 150 | 25 | 400 | 370 | 500 | 405 | 4-ф20 | 335 | 230 |
38 | 150-150-15-2500-11 | 150 | 225 | 265 | 8-ф18 | 990 | 465 | 270 | 520 | 690 | 150 | 25 | 400 | 370 | 500 | 405 | 4-ф20 | 335 | 225 |
39 | 150-200-10-2500-15 | 150 | 225 | 265 | 8-ф18 | 990 | 465 | 270 | 520 | 690 | 150 | 25 | 400 | 370 | 500 | 405 | 4-ф20 | 335 | 225 |
40 | 150-65-40-3200-18.5 | 150 | 225 | 265 | 8-ф18 | 1206 | 565 | 270 | 520 | 850 | 150 | 25 | 400 | 370 | 500 | 405 | 4-ф20 | 335 | 250 |
41 | 150-180-22-2600-18.5 | 150 | 225 | 265 | 8-ф18 | 1226 | 565 | 270 | 520 | 850 | 150 | 25 | 400 | 370 | 500 | 405 | 4-ф20 | 335 | 250 |
42 | 150-150-26-2600-18.5 | 150 | 225 | 265 | 8-ф18 | 1226 | 565 | 270 | 520 | 850 | 150 | 25 | 400 | 370 | 500 | 405 | 4-ф20 | 335 | 250 |
43 | 150-110-30-2600-18.5 | 150 | 225 | 265 | 8-ф18 | 1226 | 565 | 270 | 520 | 850 | 150 | 25 | 400 | 370 | 500 | 405 | 4-ф20 | 335 | 250 |
44 | 150-130-15-2600-22 | 150 | 225 | 265 | 8-ф18 | 1265 | 545 | 270 | 520 | 880 | 150 | 25 | 400 | 370 | 500 | 405 | 4-ф20 | 335 | 280 |
45 | 150-130-30-2600-22 | 150 | 225 | 265 | 8-ф18 | 1226 | 565 | 270 | 520 | 850 | 150 | 25 | 400 | 370 | 500 | 405 | 4-ф20 | 335 | 250 |
46 | 150-100-40-3000-30 | 150 | 225 | 265 | 8-ф18 | 1200 | 565 | 270 | 520 | 950 | 150 | 25 | 400 | 370 | 500 | 405 | 4-ф20 | 335 | 250 |
47 | 200-300-7-3000-11 | 200 | 280 | 320 | 8-ф18 | 1130 | 600 | 275 | 580 | 800 | 200 | 30 | 480 | 450 | 570 | 400 | 4-ф20 | 330 | 265 |
48 | 200-250-11-3000-15 | 200 | 280 | 320 | 8-ф18 | 1130 | 600 | 275 | 580 | 800 | 200 | 30 | 480 | 450 | 570 | 400 | 4-ф20 | 330 | 265 |
49 | 200-300-10-3000-15 | 200 | 280 | 320 | 8-ф18 | 1130 | 600 | 275 | 580 | 800 | 200 | 30 | 480 | 450 | 570 | 400 | 4-ф20 | 330 | 265 |
50 | 200-250-15-3000-18.5 | 200 | 280 | 320 | 8-ф18 | 1226 | 600 | 275 | 580 | 850 | 200 | 30 | 480 | 450 | 570 | 400 | 4-ф20 | 330 | 280 |
51 | 200-400-10-3000-22 | 200 | 280 | 320 | 8-ф18 | 1226 | 600 | 275 | 580 | 850 | 200 | 30 | 480 | 450 | 570 | 400 | 4-ф20 | 330 | 265 |
52 | 200-200-20-3000-22 | 200 | 280 | 320 | 8-ф18 | 1226 | 610 | 275 | 580 | 860 | 200 | 30 | 480 | 450 | 570 | 400 | 4-ф20 | 330 | 270 |
53 | 200-250-22-3000-30 | 200 | 280 | 320 | 8-ф18 | 1236 | 610 | 275 | 580 | 860 | 200 | 30 | 480 | 450 | 570 | 400 | 4-ф20 | 330 | 270 |
54 | 250-600-7-3000-22 | 250 | 335 | 375 | 12-ф18 | 1236 | 600 | 352 | 710 | 800 | 200 | 30 | 550 | 500 | 610 | 500 | 4-ф28 | 425 | 265 |
55 | 250-600-9-3000-30 | 250 | 335 | 375 | 12-ф18 | 1236 | 600 | 352 | 710 | 950 | 200 | 30 | 550 | 500 | 610 | 500 | 4-ф28 | 425 | 265 |
固定式自動耦合安裝尺寸表及示意圖(續)

T1 | T2 | L | M | m | n | e | E |
125 | 100 | 470 | 400 | 100 | 50 | 18 | 550×550 |
90 | 80 | 470 | 400 | 100 | 50 | 18 | 550×550 |
90 | 80 | 470 | 400 | 100 | 50 | 18 | 550×550 |
125 | 100 | 470 | 400 | 100 | 50 | 18 | 550×550 |
125 | 100 | 470 | 400 | 100 | 50 | 18 | 550×550 |
125 | 100 | 470 | 400 | 100 | 50 | 18 | 550×550 |
125 | 100 | 470 | 400 | 100 | 50 | 18 | 550×550 |
125 | 100 | 470 | 400 | 100 | 50 | 18 | 550×550 |
130 | 130 | 470 | 400 | 100 | 50 | 18 | 550×550 |
125 | 100 | 470 | 400 | 100 | 50 | 18 | 550×550 |
125 | 100 | 470 | 400 | 100 | 50 | 18 | 550×550 |
145 | 125 | 470 | 400 | 100 | 50 | 18 | 550×550 |
145 | 125 | 470 | 400 | 100 | 50 | 18 | 550×550 |
125 | 100 | 470 | 400 | 100 | 50 | 18 | 550×550 |
125 | 100 | 470 | 400 | 100 | 50 | 18 | 550×550 |
145 | 125 | 470 | 400 | 100 | 50 | 18 | 600×550 |
125 | 100 | 470 | 400 | 100 | 50 | 18 | 650×600 |
125 | 100 | 470 | 400 | 100 | 50 | 18 | 650×600 |
125 | 100 | 470 | 400 | 100 | 50 | 18 | 650×600 |
178 | 150 | 470 | 400 | 100 | 50 | 18 | 700×600 |
125 | 100 | 470 | 400 | 100 | 50 | 18 | 650×600 |
125 | 100 | 470 | 400 | 100 | 50 | 18 | 650×600 |
145 | 125 | 470 | 400 | 100 | 50 | 18 | 650×600 |
145 | 125 | 470 | 400 | 100 | 50 | 18 | 650×600 |
145 | 125 | 470 | 400 | 100 | 50 | 18 | 650×650 |
178 | 150 | 510 | 440 | 100 | 50 | 18 | 750×650 |
210 | 180 | 510 | 440 | 100 | 50 | 18 | 750×650 |
205 | 178 | 510 | 440 | 100 | 50 | 18 | 750×650 |
210 | 180 | 510 | 440 | 100 | 50 | 18 | 750×650 |
250 | 230 | 510 | 440 | 100 | 50 | 18 | 750×650 |
145 | 125 | 510 | 440 | 100 | 50 | 18 | 650×600 |
145 | 125 | 510 | 440 | 100 | 50 | 18 | 750×650 |
250 | 230 | 510 | 440 | 100 | 50 | 18 | 900×750 |
250 | 230 | 510 | 440 | 100 | 50 | 18 | 900×750 |
225 | 180 | 600 | 525 | 100 | 60 | 20 | 750×650 |
265 | 200 | 600 | 525 | 100 | 60 | 20 | 750×650 |
265 | 200 | 600 | 525 | 100 | 60 | 20 | 750×650 |
250 | 200 | 600 | 525 | 100 | 60 | 20 | 1000×800 |
250 | 200 | 600 | 525 | 100 | 60 | 20 | 1000×800 |
250 | 200 | 600 | 525 | 100 | 60 | 20 | 1000×800 |
260 | 238 | 600 | 525 | 100 | 60 | 20 | 1000×800 |
260 | 238 | 600 | 525 | 100 | 60 | 20 | 1000×800 |
260 | 238 | 600 | 525 | 100 | 60 | 20 | 1000×800 |
300 | 250 | 600 | 525 | 100 | 60 | 20 | 1000×800 |
260 | 238 | 600 | 525 | 100 | 60 | 20 | 1000×800 |
250 | 250 | 600 | 525 | 100 | 60 | 20 | 1000×800 |
295 | 240 | 600 | 525 | 100 | 60 | 20 | 1000×800 |
295 | 240 | 600 | 525 | 100 | 60 | 20 | 1000×800 |
295 | 240 | 600 | 525 | 100 | 60 | 20 | 1000×800 |
300 | 250 | 600 | 525 | 100 | 60 | 20 | 1000×800 |
295 | 240 | 600 | 525 | 100 | 60 | 20 | 1000×800 |
300 | 240 | 600 | 525 | 100 | 60 | 20 | 1000×800 |
300 | 240 | 600 | 525 | 100 | 60 | 20 | 1300×900 |
295 | 240 | 700 | 580 | 120 | 46 | 24 | 1300×900 |
295 | 240 | 700 | 580 | 120 | 46 | 24 | 1300×900 |
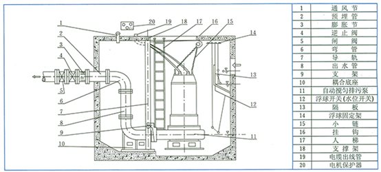
自動耦合式安裝示意圖

自動耦合式安裝平面圖

使用方法及安全操作規程
運轉前應用兆歐表檢查電機定子繞組對地的絕緣電阻,低不得少于50兆歐。
檢查電纜有無破損、折斷等現象。如有損傷須及時更換,以免漏電;電纜截面應與電流相匹配。
電壓超過額定電壓的±10%時,不得啟動電泵。
為保證使用安全,必須將四芯電纜中的接地線可靠接地,以防發生觸電事故。
電泵潛入水中時,應垂直起吊,不允許橫放著地,更不能陷入污泥中。停止使用時應將電泵吊起清洗干凈,置于干燥處,并注意防凍。
禁止將電纜作為安裝起吊繩使用。
檢查轉子運轉方向,從上向下看應為順時針方向旋轉。
室外的開關或接線端應有防雨、防潮措施,濕手或赤足時禁止觸及開關,防止觸電。
移動電泵時,必須切斷電源,電泵在運行時人不得接觸水源,以防漏電發生人身事故。
10、嚴禁電機缺相運轉,如發現保險絲熔斷,應檢查原因后方可繼續使用,不得任意加粗保險絲。
11、泵運轉時,應有專人管理,如發現有不正常現象應立即停機檢查,排除故障。(指未配全自動保護柜的情況)。
12、電泵在規定的工作介質條件下正常運行半年后,應檢查油室密封狀況,如油室中的油呈乳狀或有水沉淀,應及時更換10~20號機械油和機械密封。對于在惡劣工作條件下使用的電泵,更應經常檢修。
13、用戶應根據實際使用的工況選擇合適的流量揚程,以達到更好使用效果,泵銘牌或說明書上所示參數為該泵理想使用工況點,用戶可選在(0.7~1.2)倍理想流量內使用,禁止超流量使用,否則流量過大,揚程太低容易使電機過載。
泵的維護保養
電泵應有專人管理與使用,并定期檢查電泵繞組與機殼之間的絕緣電阻是否正常。
每次使用特別是用于較稠較粘的介質后,應將電泵放入清水中運行數分鐘,防止泵內留沉積物,保證電泵的清潔。
電泵拆卸、維修后,機殼組件必須經0.2mpa氣壓試驗檢驗,確保電機和油室密封可靠。
常見故障分析及其排除方法
故 障 現 象 | 原 因 分 析 | 排 除 方 法 |
不能啟動與運轉 | 1、電壓太低 2、葉輪被雜物卡住 3、螺帽或平鍵損壞致使葉輪打滑 | 1、調節電壓或在電壓正常時工作 2、清除雜物 3、更換損壞零件 |
超負荷 | 1、轉子部件卡滯或過流部件被異物卡住 2、軸承損壞、軸變形 | 1、重新裝配、清除異物 2、更換軸承、校正軸 |
流量不足 | 1、吸入口或輸出管被阻 2、電機轉速低于額定轉速 3、葉輪打壞 4、揚程過高 5、旋向相反 6、介質太稠或供應量不暢通 | 1、清除異物,保證暢通 2、提高轉速 3、更換葉輪 4、降低揚程 5、改換轉向 6、沖稀介質,增大供應量 |
噪聲與振動 | 1、葉輪與泵體有磨擦 2、軸承損壞或少油 3、螺帽松動 4、泵體中有雜物 5、吸入口有空氣滲入 | 1、檢查泵的裝配并進行調整 2、更換軸承或加油 3、更換螺帽 4、清除雜物 5、控制較低水位 |