GM系列高真空隔膜閥
一、GM系列高真空隔膜閥特點用途:
我公司GM系列高真空隔膜閥是供接通或切斷真空系統之用。連接管焊接式真空隔膜閥更是溴化鋰制冷設備中的理想配件。GM系列高真空隔膜閥的適用介質為空氣及非腐蝕性氣體。連接法蘭標準按GB6070或GB4982規定,也可為連接管焊接型式。
二、GM系列高真空隔膜閥簡圖:




GM系列高真空隔膜閥
三、GM系列高真空隔膜閥主要技術規范:
適用范圍Pa | 1.3×10-4 |
漏率Pa.L/S | 6.7×10-4 |
介質溫度℃ | 隔膜為丁腈橡膠時-25~+80 |
隔膜為氟橡膠時 -30~+150 |
四、GM系列高真空隔膜閥零部件材質:
零件名稱 | 材料 |
閥體 | 碳鋼、不銹鋼 |
隔膜 | 丁腈橡膠、氟膠 |
閥桿 | 不銹鋼 |
五、GM系列高真空隔膜閥外形及連接尺寸(mm)
Ⅰ型連接管焊隔膜閥外形及連接尺寸(圖1)
型號 \ 尺寸 | DN | D | H | A | L | L1 |
GM-10C-H(Ⅰ) | 10 | 19 | 80 | 55 | 240 | 120 |
GM-25C-H(Ⅰ) | 25 | 32 | 105 | 80 | 240 | 120 |
GM-40C-H | 40 | 45 | 133 | 100 | 240 | 120 |
GM-50C-H | 50 | 57 | 157 | 100 | 240 | 120 |
GM-10D-H(Ⅰ) | 10 | 19 | 77.5 | 50 | 150 | 150 |
GM-25C-H(Ⅰ) | 25 | 32 | 105 | 60 | 75 | 75 |
Ⅱ型連接管焊隔膜閥外形及連接尺寸(圖2)
型號 \ 尺寸 | DN | D | H | A | L | L1 |
GM-10C-H(Ⅱ) | 10 | 19 | 80 | 55 | 195 | 120 |
GM-25C-H(Ⅱ) | 25 | 32 | 105 | 80 | 236 | 120 |
GM-10D-H(Ⅱ) | 10 | 19 | 77.5 | 50 | 150 | 75 |
GM-25D-H(Ⅱ) | 25 | 32 | 105 | 66 | 175 | 75 |
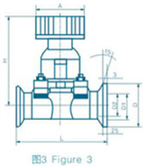
Ⅲ活套法蘭連接隔膜閥外形及連接尺寸(圖3)
型號 \ 尺寸 | DN | D | D1 | H | A | L |
GM-10C-KF | 10 | 30 | 12.2 | 80 | 55 | 75 |
GM-25C-KF | 25 | 40 | 26.2 | 105 | 80 | 120 |
GM-40-KF | 40 | 50 | 41.2 | 133 | 100 | 120 |
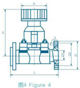
Ⅳ活套法蘭連接隔膜閥外形及連接尺寸(圖4)
型號 \ 尺寸 | DN | D | D1 | H | A | L | n-Фc |
GM-10C | 10 | 46 | 36 | 80 | 55 | 75 | 4-Ф6 |
GM-25C | 25 | 70 | 55 | 105 | 80 | 120 | 4-Ф7 |
GM-40C | 40 | 100 | 80 | 133 | 100 | 150 | 4-Ф9 |
GM-50C | 50 | 110 | 90 | 157 | 100 | 180 | 4-Ф9 |
我公司采用標準: 設計與制造:GB12239 結構長度:GB/T15188.3(N8)