GJ941X-6L電動管夾閥

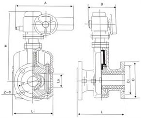
GJ941X-6L電動管夾閥外形尺寸圖
一、主要性能規范
適用溫度 | 適用介質 |
≤85℃ | 礦漿、磨料、干濕型粉塵類 |
二、主要零件材料
名稱 | 材料 | 壓桿 | 球墨鑄鐵 |
閥體 | 鋁合金 | 電動頭 | 組合件 |
套管 | 橡膠 | 托架 | 球墨鑄鐵 |
閥桿 | 鑄銅、碳鋼 |
三、主要外形連接尺寸(mm)
公稱 | 公稱 | 工作 | L | L1 | L0 | D | D1 | Z-Φ | H | 電動裝置 | |||||
通徑 | 壓力 | 壓力 | 型號 | A | B | D0 | kw | ||||||||
(DN) | (MPa) | (MPa) | |||||||||||||
25 | 0.6 | 0.6 | 160 | 124 | 31 | 115 | 85 | 4-14 | ZA5-14 | 443 | 133 | 0.12 | 18 | ||
32 | 165 | 145 | 40 | *140 | 100 | 4-18 | |||||||||
40 | 190 | 157 | 50 | *150 | 110 | 4-18 | |||||||||
50 | 210 | 160 | 60 | 160 | 125 | 4-18 | ZA10-18 | 552 | 425 | 0.25 | 71 | ||||
65 | 250 | 199 | 74 | 180 | 145 | 4-18 | ZA15-15 | 552 | 425 | 305 | 0.37 | 80 | |||
80 | 300 | 222 | 88 | 195 | 160 | 4-18 | ZA30-18 | 552 | 425 | 305 | 0.75 | 92.9 | |||
100 | 350 | 250 | 106 | 215 | 180 | 8-18 | ZA30-18 | 552 | 425 | 305 | 0.75 | 101 | |||
125 | 430 | 318 | 134 | 245 | 210 | 8-18 | 305 | ||||||||
150 | 500 | 350 | 158 | 280 | 240 | 8-23 | 1000 | ||||||||
200 | 0.4 | 0.4 | 650 | 446 | 206 | 335 | 295 | 8-23 | 1174 | ZA14-18 | 766 | 390 | 305 | 1.1 | 265 |
250 | 800 | 516 | 256 | *395 | 350 | 12-23 | |||||||||
300 | 950 | 562 | 304 | *445 | 400 | 12-23 | |||||||||
采用標準 設計與制造:Q/JBGN02 結構長度:Q/JBGN02 法蘭連接尺寸:JB78(PN1.0MPa) | |||||||||||||||
注:我公司三通隔膜閥采用標準 設計與制造:GB12239 結構長度:GB12221(系列1) 帶*者法蘭標準為GB4216(PN1.0MPa)